- Главная
- Кухни
- Кухня Шанталь
- Кухня Шанталь - длина 3,65 м
Кухня Шанталь - длина 3,65 м
- Обзор
- Характеристики
- Доставка
- Вопрос-ответ
- Отзывы6
- О производителе
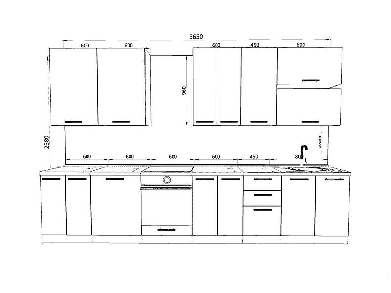
В цену композиции кухни Шанталь - длина 3,65 м представленной на фото входит:
- Все предметы, указанные на фото с фурнитурой (без бытовой техники и дополнительной комплектации).
- В цену композиции СТОЛЕШНИЦА НЕ ВХОДИТ, есть возможность изготовления цельной или раздельной столешницы за дополнительную плату в разделе "Столешница толщиной 26 мм", "Столешница толщиной 38 мм".
- Данная модель ручек не входят в комплектацию кухни. В комплект входит ручка Рейлинг.
- Выбрать комплектующие для кухни Вы можете на странице ниже - в разделе «Комплеткующие для кухни»
- - Нагрузочная способность 25 кг. Быстрая установка и демонтаж ящика.
- - Простая сборка и регулировка передней панели.
- - Односторонняя принудительная стабилизация движения.
- - Функция самозакрывания.
- Для направляющих к ящикам используются метабоксы (дно ДСП) компании
. - Фурнитура: петли мебельные без доводчика компании

- Каркас всех модулей выполнен из ЛДСП (толщина 16 мм), оклеен кромкой ПВХ в цвет (толщина 0.4 мм), компании
. - Фасад на выбор ЛДСП, МДФ в пленке ПВХ, МДФ панели компании
. - Стекло: СКРИН (толщина 4 мм);
- Ножки пластиковые черные 100 мм.

Размеры рабочих столов указанны по столешнице, фактические размеры предметов изготавливаются меньше для сантехнических нужд.
Смотреть схематические изображения ниже.
Глубина рабочих столов по корпусу 490мм, с фасадом 508мм, по столешнице 600мм.

В фасадах с решеткой шириной 300мм,350мм возможен только один ряд окошек.
Вариант с двумя рядами окошек на фасадах 300мм,350мм НЕ ВОЗМОЖЕН!!! 
| Размеры | |
| Длина, мм | 3650 |
| Высота, мм | 2380 |
| Глубина, мм | 600 |
| Цвет и материал | |
| Цвет корпуса | Дуб Бардолино (SL) |
| Фасад | AGT 623 HG Vizon (SL) |
| Материал фасада | МДФ |
| тип фасада | Гладкий |
| вид поверхности фасада | Глянцевая |
| материал поверхности фасада | Пластик АГТ |
| Дополнительные характеристики | |
| Модель | Шанталь |
| Артикул | 63118 |
| Производитель | Skyline |
Доставка
- Передача товара осуществляется на дату, согласованную с Покупателем в течение дня с 9.00 до 21.00 часов. Мебель доставляется в разобранном и упакованном виде, передаётся Покупателю по накладной с указанием количества доставленных пакетов. Заказчик обязан принять мебель, сверив ее наличие по накладной, и расписаться в получении.
- При получении Покупатель обязан проверить целостность зеркал и стекол (если они имеются в заказе), остальные упаковки при передаче товара не вскрываются, за исключением осуществления Покупателем самосборки.
Как узнать, когда будет доставка?
- Для того чтобы узнать, когда будет доставка Вашего заказа, Вы можете позвонить по телефону: +7 (499) 302-03-97 с 10.00 до 21.00.
- Если Ваш заказ укомплектован и готов к доставке, с Вами свяжется сотрудник логистики и согласует удобный для Вас день доставки. Также он сможет назвать половину дня, в которую Ваш заказ привезут.
- Для Вашего удобства за час до предполагаемого времени доставки заказа Экспедитор свяжется с Вами и предупредит о том, что скоро будет на указанном адресе.
На что ещё стоит обратить внимание?
- Для юридических лиц при получении мебели необходимо иметь доверенность или печать организации.
- Если для заезда на территорию необходим пропуск, просьба сообщить об этом при оформлении заказа. Мы заранее предоставим данные, необходимые для оформления пропуска экипажу доставки.
- При доставке на территорию с платным въездом или проезд по платной дороге покупатель компенсирует водителю потраченные средства.
- Время ожидания разгрузки: собственно разгрузки, приемки товара и подписания документов - не должно превышать один час. Превышение оплачивается клиентом исходя из 500 руб. за час простоя.
|
|||||||
| Доставка осуществляться до подъезда. | |||||||
| Вес доставляемых товаров | Стоимость | Подъём (Лифт) | Ручной подъём (1 этаж) | ||||
| 0-10 кг | 500 руб. | Бесплатно. | Бесплатно. | ||||
| 10-50 кг | 500 руб. | 250 руб. | 150 руб. | ||||
| 50-100 кг | 750 руб. | 350 руб. | 250 руб. | ||||
| 100-300 кг | 850 руб. | 550 руб. | 350 руб. | ||||
| 300 - 500 кг | 1100 руб. | 1100 руб. | 400 руб. | ||||
| 500 - 750 кг | 1200 руб. | 1300 руб. | 450 руб. | ||||
| от 750 кг | Цена договорная | Цена договорная | Цена договрная | ||||
| Все цены указаны без учёта стоимости доставки в область | |||||||
| Стоимость доставки в область | |||||||
| Стоимость 1 км. | 40 руб. | ||||||
| !!!!!! Для вашего удобства - дополнительная услуга «Доставка по времени» !!!!!! | |||||
|
|||||
| 1. В 1 половине дня (с 9:00 до 15:00) + 1500 руб. | |||||
| 2. В 2 половине дня (с 15:00 до 21:00) + 1500 руб. | |||||
| 3. Доставка после 18:00 + 2000 руб. | |||||
| Доставка в оговоренный 2-часовой интервал + 2000 руб. | |||||
| Доставка мебели в Регионы РФ: | |||||
| Доставка осуществляется до транспортной компании. | |||||
| Стоимость доставки - 2000р. по Москве, если ТК находится за пределами МКАД+ стоимость за км. | |||||
| 1. Доставка мебели в другие города России осуществляется транспортными компаниями после полной оплаты заказа. Услуги транспортной компании оплачиваются клиентом при получении заказа. При заказе обязательно указывайте адрес электронной почты для уточнения параметров заказа, отправки платежных документов и пр. | |||||
| 2. Мебель доставляется в разобранном и упакованном виде, сдается представителю ТК по накладной с указанием количества доставленных пакетов. | |||||
| 3. Стоимость грузоперевозки зависит от объема и веса груза и рассчитывается индивидуально для каждого заказа. | |||||
| 4. Обязательная рекомендация учитывать при расчёте обрешетку Вашего заказа, которая обеспечит сохранность товара. | |||||
|
|||||
| Подъем корпусной мебели: | |||||
| Подъём в квартиру при наличии лифта: | |||||
| грузового - 650 руб. | |||||
| пассажирского - 800 руб. | |||||
| Ручной подъем без лифта - 400 руб. 1этаж (1 этаж так же оплачивается ) | |||||
| Ручной подъем без лифта общим объемом менее 1(одного) кубометра (пуфы, журнальные столы, стулья и т.д. ) – 200 руб/этаж. | |||||
| Предметы, не вошедшие в лифт подымаются в ручную за дополнительную плату - 350р. 1 эт. (цена указана за подъём одного предмета. Пример: столешница, стеновая панель более 2400мм, матрац и т.д.) | |||||
| Стоимость выезда Замерщика | |||||
|
|||||
| Выезд сборщика по Москве в пределах МКАД | БЕСПЛАТНО | ||||
| в Подмосковье за МКАД до 10 км. | 300 руб. | ||||
| в Подмосковье за МКАД от 10 км. до 20 км. | 600 руб. | ||||
| в Подмосковье за МКАД от 20 км. до 50 км. | 1000 руб. | ||||
| в Подмосковье за МКАД более 50 км. | договорная | ||||
| Расценки на сборку корпусной мебели (гостиной; прихожей; детской; спальни и т.д.) | |||||
| Стоимость сборки мебели без дополнительных работ: | |||||
| от суммы заказа до 40000 руб. - 10% | |||||
| от суммы заказа более 40000 руб. - 8%. | |||||
| Что входит цену сборки мебели: Сборка модулей и дополнительной комплектации выписанные в накладной, расстановка в указанное Вами место. | |||||
| Что не входит в цену сборки мебели: стяжка элементов между собой, навеска шкафчиков, полок, вешалок, зеркал к стене, выпил под розетки, подключение эл.проводки, вырез, отпил фрагментов мебели, всё выше перечисленное считается дополнительной работой, и оплачивается по прайс-листу. | |||||
| Прайс-лист на дополнительные работы по сборке гостиных, спальни, прихожих, детских | |||||
| Наименование | ед. | Цена | |||
| Вырез, отпил фрагмента мебели | 1 деталь | 100 руб. | |||
| Вырез под светильник | шт. | 150 руб. | |||
| Стяжка элементов между собой | ед. | 70 руб. | |||
| Навеска полки, вешалки, зеркала с использованием перфоратора | шт. | 350 руб. | |||
| Вырез отверстия под розетку | шт. | 120 руб. | |||
| Подключение подсветки | шт. | от 1000 руб. | |||
| Осуществление покупок материала для выполнения работ | 500 руб. | ||||
| Коэффициент за работы в стеснённых условиях от стоимости заказа | 10% | ||||
| Вынужденный простой мастера, по вине клиента | час | 400 руб. | |||
| Демонтаж старой мебели (без выноса) | шт. | 500 руб | |||
| Работы, не указанные в прайс-листе, расцениваются | час | 600р. | |||
| Стоимость сборки кухни. | |||||
| Наша компания может доставить Ваш заказ в собранном виде, подготовленным к установке. | |||||
| Сборка 1-го предмета - 150р. | |||||
| Сборка 1-го Шкаф-пенала - 300р. | |||||
|
|||||
| Стоимость установки кухни без дополнительных работ: | |||||
| Наша компания осуществляет монтаж, а также все виды дополнительных работ по установке кухни. | |||||
| от суммы заказа до 40000 руб. - 15% | |||||
| от суммы заказа более 40000 руб. - 15%. | |||||
|
|||||
| Что не входит в цену установки кухни: выпил под мойку, варочную панель, розетки, подключение эл.проводки, вырез, отпил фрагментов мебели, установка и подключение бытовой техники, всё выше перечисленное считается дополнительной работой, и оплачивается по прайс-листу. | |||||
|
|||||
| Наименование | Ед. | Цена |
|---|---|---|
| Обрешетка для навески шкафов с материалом заказчика | п.м. | 300 руб. |
| Герметизация врезной мойки и варочной панели с использованием герметика сборщика | шт. | 300 руб. |
| Пробивка отверстия в мойке, раковине под смеситель | шт. | 200 руб. |
| Перенос розеток не силовых (с применением материала заказчика) | шт. | 250 руб. |
| Перенос розеток силовых (с применением материала заказчика) | шт. | 300 руб. |
| Вырез под светильник | шт. | 150 руб. |
| Подключение подсветки | шт. | 1000 руб. |
| Вырез отверстия под розетку, выключатель - в стеновой панели без демонтажа розетки | шт. | 150 руб. |
| Вырез отверстия под розетку, выключатель - в стеновой панели с демонтажем розетки | шт. | 250 руб. |
| Пропил под мойку, варочную панель в столешнице 26 или 38мм. | шт. | 900 руб. |
Установка столешницы приобретённой в ином месте (не в МК "Антарес") |
шт. | 3000 руб. |
Установка стеновой панели приобретённой в ином месте (не в МК "Антарес") |
шт. | 1500 руб. |
| Наименование | Ед. | Цена |
|---|---|---|
| Осуществление покупок материала для выполнения работ | 500 руб. | |
| Коэффициент за работы в стеснённых условиях от стоимости заказа | 10% | |
| Вынужденный простой мастера, по вине клиента | час | 500 руб. |
| Демонтаж старой мебели (без выноса) | шт. | 500 руб. |
| Демонтаж старой раковины | шт. | 600 руб. |
| Корректировка (вырез) под коммуникации | шт. | 100 руб. |
| Корректировка (распил) стеновой панели | шт. | 500 руб. |
| Корректировка (распил) столешницы 26-38 мм. | шт. | 500 руб. |
| Корректировка (1 ед.) шкафа | шт. | 500 руб. |
| Установка кухонной бытовой техники (без подключения) | Ед. | Цена |
|---|---|---|
| Мойка | шт. | от 1500 руб. |
| Варочная поверхность | шт. | от 1000 руб. |
| Духовой шкаф | шт. | от 1000 руб. |
| Стиральная машина встройка | шт. | от 1500 руб. |
| Встраиваемый холодильник | шт. | от 2000 руб. |
| Посудомоечная машина | шт. | от 1500 руб. |
| Вытяжка навесная | шт. | от 600 руб. |
| Встраиваемая микроволновая печь | шт. | от 1000 руб. |
Гость
Консультант интернет-магазина КухниТур
Гость
Консультант интернет-магазина КухниТур
Гость
Консультант интернет-магазина КухниТур
Гость
Консультант интернет-магазина КухниТур
Гость
Консультант интернет-магазина КухниТур
Гость
Консультант интернет-магазина КухниТур

SKYLINE-один из высококачественных производителей офисной мебели в России, начавший свою историю весной 1996 года как небольшая производственная фабрика.
Постоянная модернизация технического оборудования и обучение персонала помогли нам развиться в Фабрику Мебели. Впервые мы заявили о себе на выставке в Москве "ЭКСПО2005", как"СМАРТ". Выставка привлекла внимание специалистов и оптовиков своими высококачественными моделями и привлекательными ценами.
С тех пор продукция нашего завода получила различные дипломы на специализированных выставках. Для постоянного улучшения качества нашей продукции завод модернизировал производственный процесс и закупил новейшее деревообрабатывающее оборудование известных европейских брендов.
Мы никогда не довольствуемся статус-кво и регулярно расширяем ассортимент моделей. С момента основания фабрики неустанные усилия наших сотрудников позволили нам постоянно совершенствовать производство, разрабатывать новые современные модульные системы и удовлетворять самые разнообразные вкусы.
Компания "КУХНИТУР" является представителем мебельной фабрики "SKYLINE", поэтому мы предлагаем мебель по ценам производителя.
Кухня Шанталь - длина 3,65 м отзывы
Средняя оценка покупателей:(6)
| 6 | ||
| 0 | ||
| 0 | ||
| 0 | ||
| 0 |
Также понравился сервис компании КУХНИТУР, очень вежливые и терпеливые менеджеры), ребята-сборщики попались очень аккуратные. Если что-то будет надо из мебели, обязательно обращусь в эту фирму
Я люблю глянцевые поверхности и увидев на сайте КУХНИТУР такую модель кухни мне она запала в душу, были сомнения по цвету, но в салоне мне помогли выбрать подходящие по цвету варианты, и я остановилась на цвете кофе с молоком. А разнообразия вариантом как цветовых так и декора более чем предостаточно. И очень понравилось что все было собрано идеально с ровными зазорами с хорошо работающими роликами в выдвижных ящиках и доводчиками. Не заметила никаких сколов или других дефектов.
Купили эту кухню в октябре того года. Заказали с доставкой в Краснодарский край. Даже с учетом доставки вышло дешевле, чем купить у нас аналогичного качества. Кухней довольны
Кухню выбирали на сайте по фотографиям. Менеджер по нашим пожеланиям нарисовала визуальный дизайн проект и расчет стоимости и выслала его нам в WhatsApp. Кухню привозил в течении 3 недель, собрали в точности по дизайн проекту. Мы очень довольны.
Покупали кухню 3 года назад, с тех пор стоит как новая. Фасады моются хорошо, пятен не остается, все шкафы открываются без скрипов, вся фурнитура работает отлично. Поэтому в новую квартиру решили купить опять в компании КУХНИТУР и все снова получилось хорошо: отзывчивые менеджеры, доставили кухню через 20 дней и собрали в тот же день. Мы очень довольны!









































